Back to listings

SOLD

Property Overview:   

   4 

About This Property

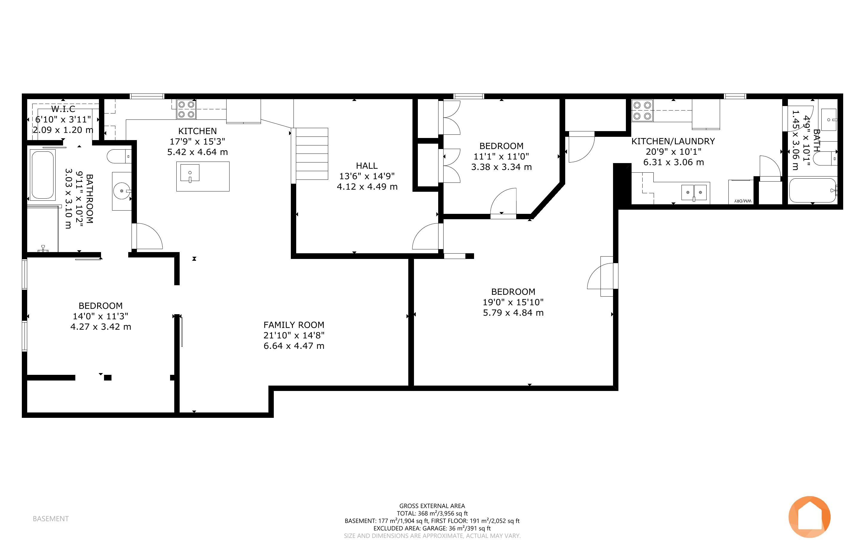
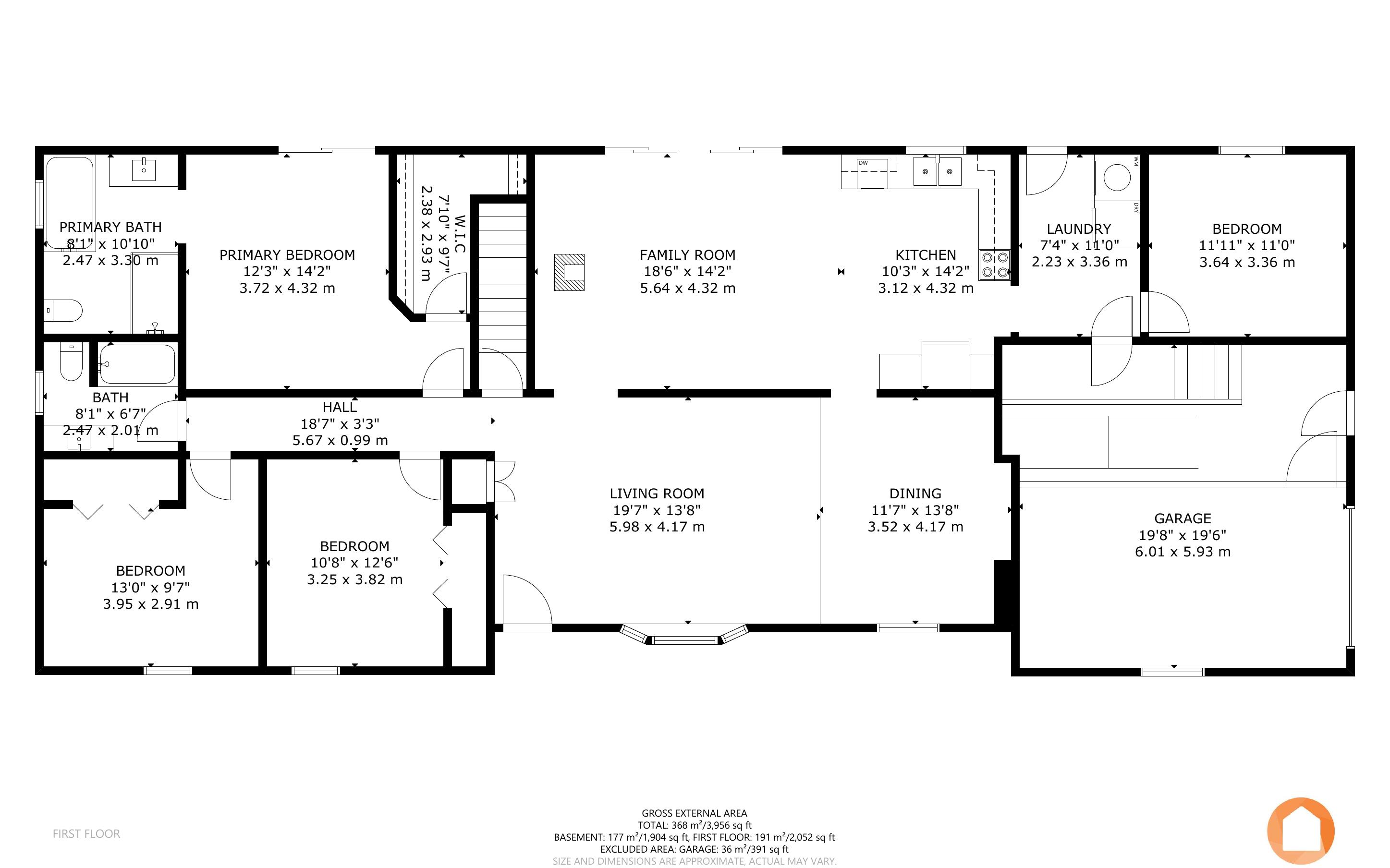
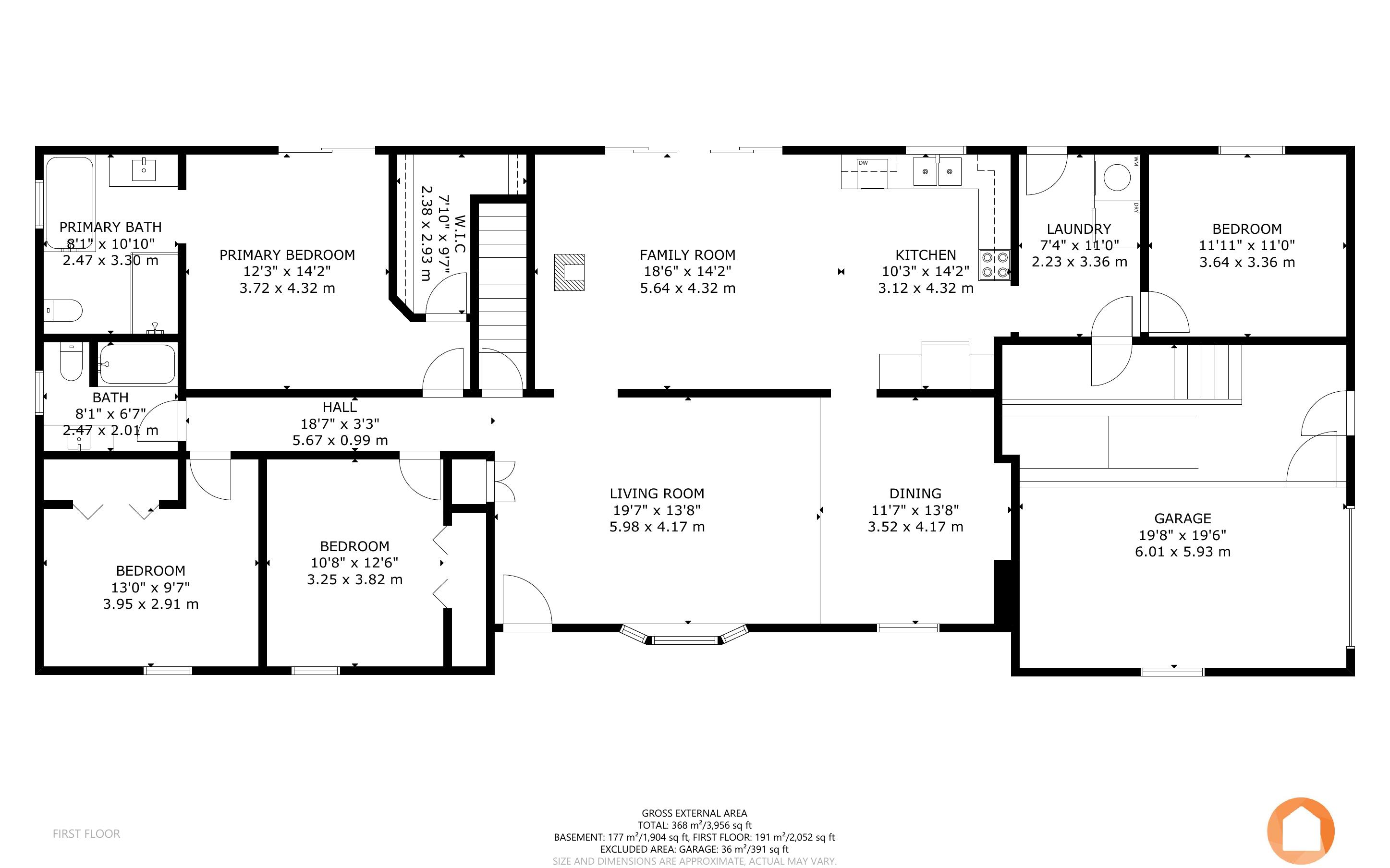
One of a kind hobby farm 5 minutes from Lindsay in the beautiful Kawartha Lakes. This 23 acre parcel offers way more than you might think. The sprawling bungalow has space for 3 separate generations with a main floor suite as well as two self-contained in-law suites in the basement- each with their own kitchen and laundry facilities! For added peace of mind the septic tank is new (2023), there's a battery backup on the sump pump and alarms on both sewage barrels. A 6 stall hip roof horse barn, as well as pasture field and additional tile drained hay field - all on a hard topped road - round out this fantastic property!

 

Essential Information

Listing #:X7220970

# of Bedrooms: 7

# of Bathrooms: 4

Type: Rural Residential

Sub-Type: hobby

Community Information

city: Reaboro

province: Ontario

postal code: K0L 2X0

Amenities

Features: Acreage, Drilled well

Interior

Fireplace: Yes

Fireplace Type: Wood stove

Appliances

Central Air Conditioning, Main floor laundry

Heating

Forced air - electric

Exterior

exterior: Brick Veneer, Vinyl siding

exterior features: Deck(s), Outbuildings, Walk out

acreage: 23

Listing Details

Office: Royal LePage Kawartha Lakes Realty Inc.

Interested in this listing?   Book a viewing