Back to listings

SOLD

Property Overview:   

   2 

About This Property

Commuter Dream! 

Welcome to 3130 County Rd 10, just seconds North of the 401, this country home is perfectly located to make your commute to anywhere easy! You'll appreciate proximity to Port Hope for you errands, while being so accessible to Cobourg or the GTA for anything Port Hope doesn't offer. 

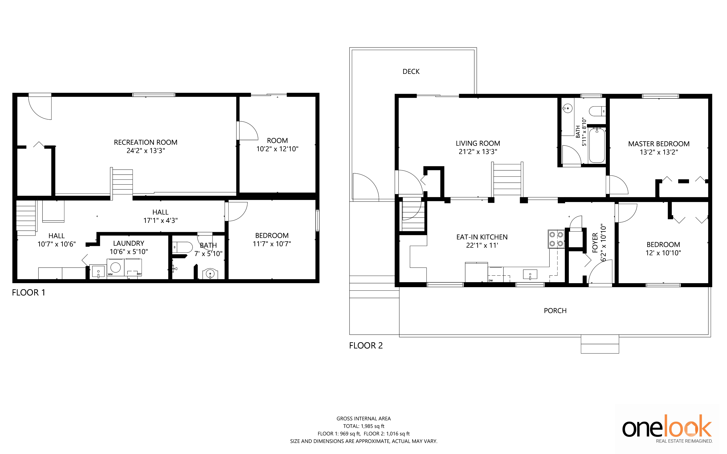
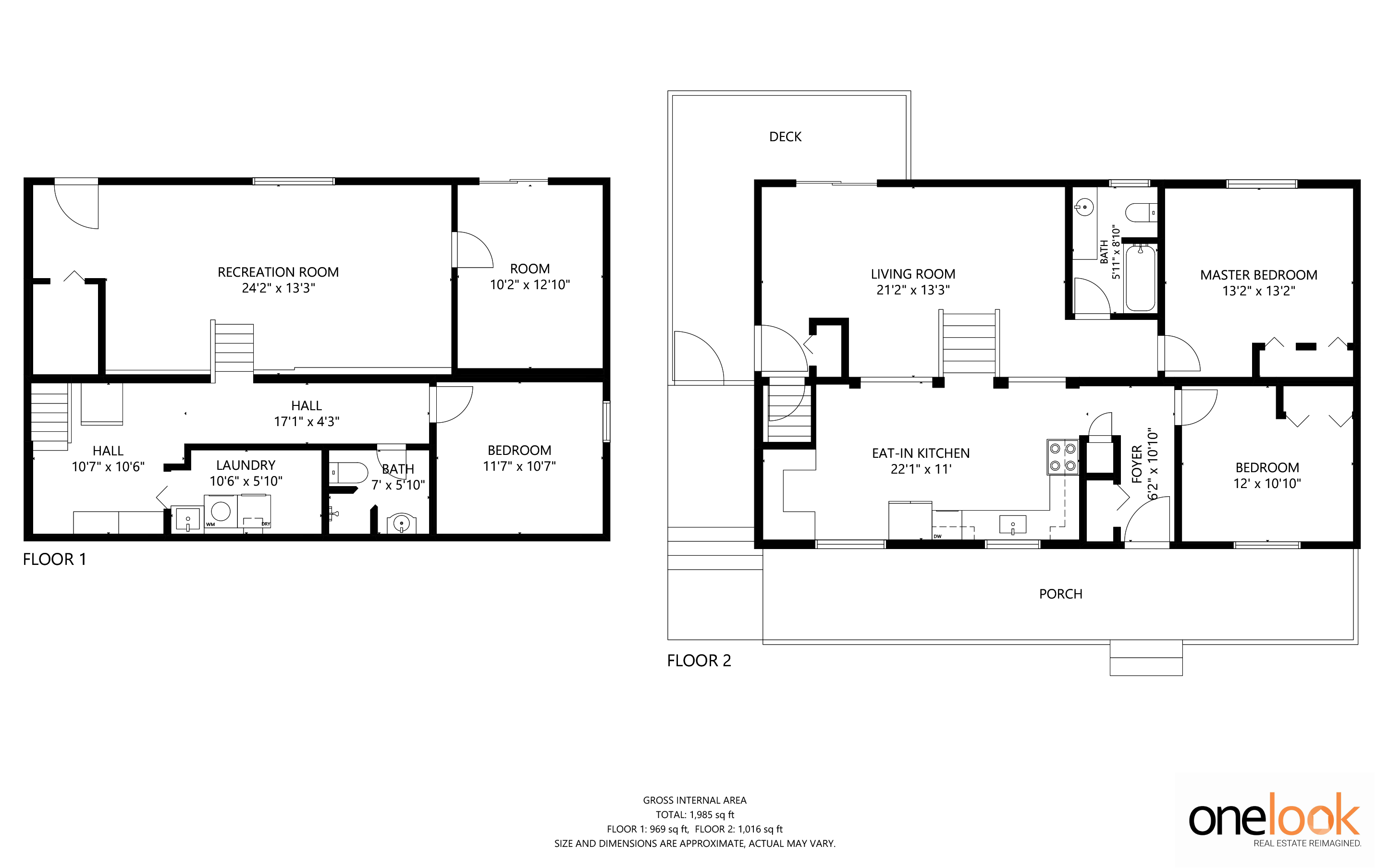
This four level backsplit has lots of options to suit your needs. Small family or first time buyers- use the upper two levels yourself, and the lower two levels, complete with walkout are ideal for adding an in-law suite to subsidize your living cost! 
Bigger family with teens? Lower two levels offer great space for older kids to hang out, with 2 bedrooms, rec room and 3 pc bath. 

Important things to note: Furnace (2015) Water treatment systems (2018) 

 

Essential Information

Listing #:253769

# of Bedrooms: 4

# of Bathrooms: 2

Type: Single Family

Community Information

city: Port Hope

province: Ontario

postal code: L1A 3V5

Amenities

Features: Central Air Conditioning

Heating

Forced air - gas

Exterior

exterior: Brick, Vinyl siding

exterior features: Deck(s), Porch, Walk Out Basement

Listing Details

Office: Royal LePage Kawartha Lakes Realty

Interested in this listing?   Book a viewing